본문 바로가기

About 임대주택

LH 고양시 지역 국민임대주택 예비입주자 모집[2020.07.06]

반응형

작성일 기준 시점에 따른 것으로 추후 변동/수정 사항이 있을 수 있습니다

 

 

 

LH 고양시 지역 국민임대주택 예비입주자 모집[2020.07.06]


 

문의: 1600-1004(한국토지주택공사 콜센터)

 

 

20200706고양시국민임대예비입주자모집공고문(안)_최종.pdf
0.55MB
별첨8_단지별평면도.pdf
4.19MB

 

 

 

국민임대주택이란?

장기 공공임대주택 재고량을 선진국 수준으로 확대하여 무주택 저소득층(소득 1~4분위 계층)의 주거 안정을 도모하기 위해 국가 재정과 국민주택기금을 지원받아 국가, 지방자치단체, 한국토지주택공사 또는 지방공사가 건설, 공급하는 주택으로 저렴한 임대료로 장기간(30년) 임대하며, 분양전환 되지 않음.

 

 

 

 

 

 

개요

1. 모집 일정 안내

1순위 접수 결과 신청자가 모집할 예비입주자수를 초과할 때에는 2, 3순위 접수를 받지 않습니다.

신청순위별로 신청접수일이 다르며, 신청접수일별 해당순위인 분만 신청 가능합니다.

1순위 접수 결과 신청자가 모집할 예비입주자수를 초과할 경우 후순위 접수를 받지 않으며, 후순위 접수여부는

해당순위 접수마감일 20:00 이후 LH 청약센터 홈페이지에 게시합니다.

** 확인방법 : LH 청약센터(https://apply.lh.or.kr) → 상단 『분양임대정보』활성창 오른쪽 상단 『공지사항』클릭

→ 임대주택(국민임대) 선택 인터넷/모바일 신청 서류제출 대상자 발표

** 확인방법 : LH 청약센터(https://apply.lh.or.kr) → 상단 『인터넷청약』 클릭활성창 오른쪽 아래 『서류제출

대상자조회(임대주택)』 클릭

서류제출대상자는 순위 및 배점에 따라 모집호수의 통상 2배수 이내로 선정되며, 자격검증 후에 적격자가 모집인원을

초과할 경우 배점이 낮은 신청자는 탈락됩니다.

서류제출대상자로 선정되더라도 제출기간 내 서류 미제출 시 청약의사가 없는 것으로 간주하여, 당첨에서 제외합니다.

(8.제출서류 참조)



 

2. 모집 주택

 

 

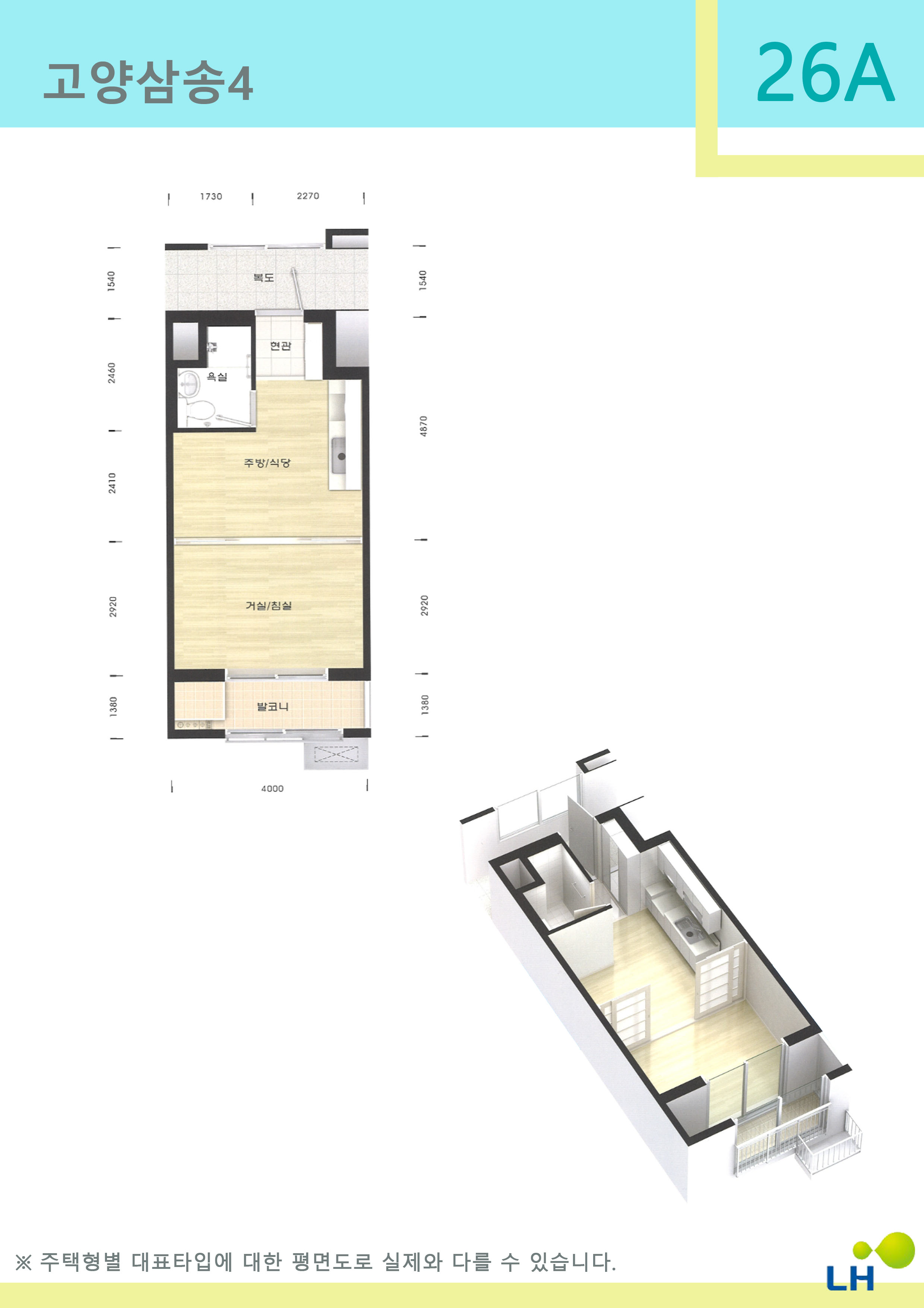
단지별주택형별 평면도는 공고문과 별도로 안내하고 있으니, 참고하시기 바랍니다.

주거전용면적은 주거의 용도로만 쓰이는 면적이며, 주거공용면적은 계단복도주현관 등 공동주택의 지상층에 있는 공용면적이며, 그 밖의 공용면적은 주거공용면적을 제외한 관리사무소경비초소지하층 등의 공용면적입니다.

세대당 계약면적은 동일단지의 주택형별로 대표적인 면적을 공고한 것으로서 실제 입주하는 주택은 같은 주택형이라 하더라도 주거전용면적 등 세대당 계약면적이 다소 다를 수 있습니다.

주택에 설치된 발코니는 주택공급면적에서 제외된 비주거 공간으로 샤시가 설치된 경우 내외부의 온도 및 습도 차이로 인해 결로 현상이 발생될 수 있으므로 환기 등 예방조치를 취하여야 합니다. 특히, 동절기에 빨래를 건조하거나 가습기를 사용하는 경우에는 샤시창을 자주 개방해 주셔야 합니다.

금회 공고는 향후 임대주택 해약에 대비하여 모집하는 것으로, 예비입주자로 선정되더라도 실제 입주까지는 상당 기간 소요될 수 있으며, 현재 공가에 대해서는 공개하지 않습니다.

 

 



 

 

임대조건의 임대보증금 및 월임대료는 모집공고일 현재 기준이며, 예비입주자로 선정된 고객께서 임대차계약을 체결하는 시점에 당해 주택의 임대조건이 변경된 때에는 변경된 임대조건으로 계약하셔야 합니다.

동일 주택형에서 주거전용면적 등 세대당 계약면적이 다소 다를 수 있으나, 임대보증금 및 월임대료는 주택형별로 동일하게 적용합니다.

월임대료의 보증금 전환은 임차인의 선택사항으로서 100만원 단위로 보증금 추가 납부가 가능합니다.

위 최대전환 시 임대조건은 월임대료의 임대보증금으로 전환 시 이율 6%를 적용하여 산정한 것으로서, 향후 전환 이율이 변경되는 때에는 변경된 이율을 적용하여 다시 산정하게 됩니다. (임대보증금의 월임대료 전환 시 이율 3% 적용)

 

 

 

고양일산1

 

 

 

 

고양행신1

 

 

 

고양행신2

 

 

 

고양삼송2

 

 

 

 

고양삼송4

 

 

 

고양삼송14

 

 

 

 

 

신청 자격

입주자 모집공고일( 2020.07.06. ) 현재 성년자인 무주택세대구성원으로서 아래의 소득, 자산보유 기준, 기타 법에 정한 요건을 충족하는 자 (단 아래 신청자격은 입주자모집공고일부터 입주 시까지 계속 유지하고 있어야 하며, 당첨 후 주택소유 등으로 자격요건 상실시 당첨이 취소되거나 계약이 거절될 수 있습니다.)

 

자세한 내용은 모집 공고문을 확인하시기 바랍니니다.

 

 

 

 

 

 

 

 

 

 

 

 

 

 

728x90
반응형